Very Little Theater (Click for more images)
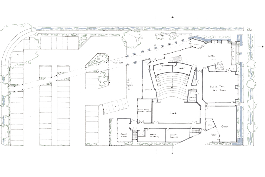
Design of a new, 250-seat theater for the Very Little Theater Company in Eugene, OR.
Very Little Theater (Click for more images)
Design of a new, 250-seat theater for the Very Little Theater Company in Eugene, OR.