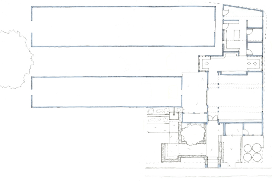
Sustainable Learning Center at Pringle Creek (Click for more images)
Design of a community center in the pringle creek development.
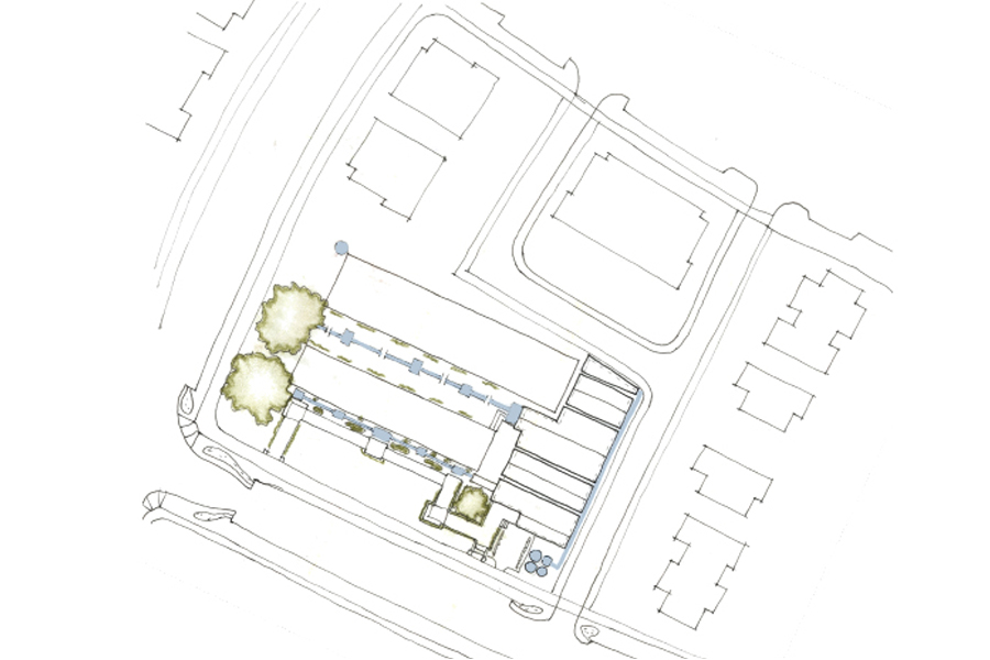
Sustainable Learning Center at Pringle Creek (Click for more images)
Design of a community center in the pringle creek development.