logo

Projects

- Building Design

- Urban Design

- Design-Build

- Other

Resume

- Download PDF

Contact

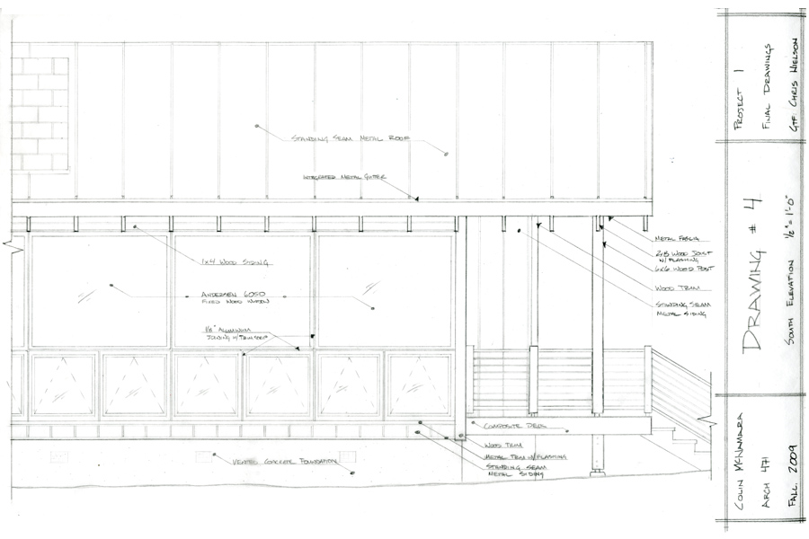
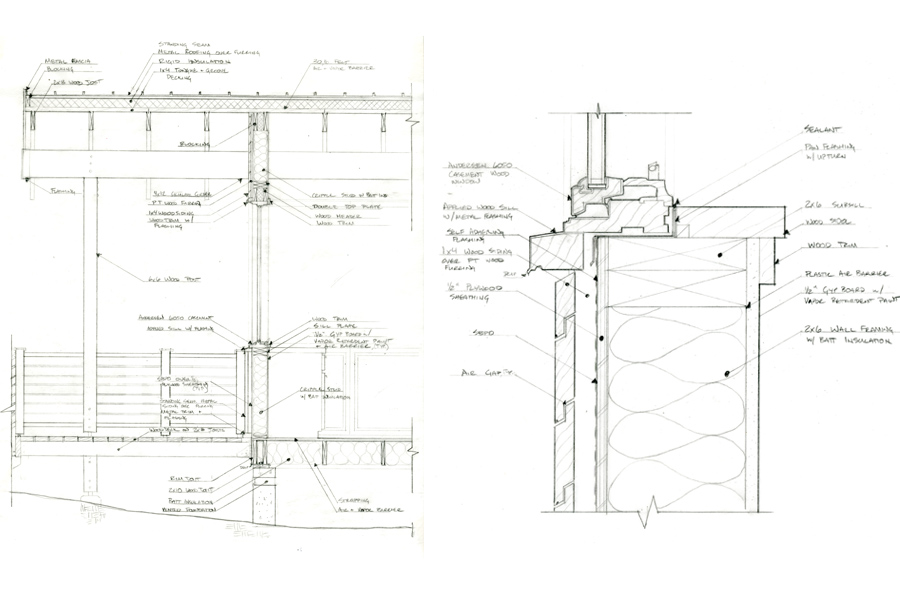
Enclosure Detail Drawings (Click for more images)

Detail drawings of wood frame and concrete and glass enclosure systems.